147 Chestnut Street BFoxboro, MA 02035
Due to the health concerns created by Coronavirus we are offering personal 1-1 online video walkthough tours where possible.



Mortgage Calculator
Monthly Payment (Est.)
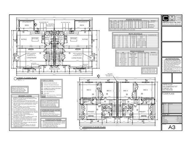
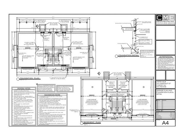
$3,855*To Be Built* Welcome to this brand new construction (2026) duplex offering modern design, generous living space and a great location, close to everything Foxboro has to offer! This spacious 3 Bedroom 2 full and 2 half bath home is designed for todays lifestyle, The open concept main level features a large kitchen, eating area and family room along with a 1/2 bath with in-unit laundry! The basement entry welcomes you from the garage into a functional mudroom, 1/2 bath and Bonus room! Upstairs you will find 3 bedrooms, including a comfortable primary suite with plenty of closet space and an additional full bath! This home is close to shopping, dining, major highways, and schools! A rare opportunity to own a brand new duplex in Foxboro - don't miss it! Still time to customize!
| a month ago | Listing updated with changes from the MLS® | |
| 2 months ago | Listing first seen on site |
The property listing data and information, or the Images, set forth herein were provided to MLS Property Information Network, Inc. from third party sources, including sellers, lessors, landlords, and public records, and were compiled by MLS Property Information Network, Inc. The property listing data and information, and the Images, are for the personal, non-commercial use of consumers having a good faith interest in purchasing, leasing or renting listed properties of the type displayed to them and may not be used for any purpose other than to identify prospective properties which such consumers may have a good faith interest in purchasing, leasing or renting. MLS Property Information Network, Inc. and its subscribers disclaim any and all representations and warranties as to the accuracy of the property listing data and information, or as to the accuracy of any of the Images, set forth herein.
Last checked 2026-03-08 02:37 AM UTC
Did you know? You can invite friends and family to your search. They can join your search, rate and discuss listings with you.