345 Bay RoadEaston, MA 02356
Due to the health concerns created by Coronavirus we are offering personal 1-1 online video walkthough tours where possible.


Mortgage Calculator
Monthly Payment (Est.)
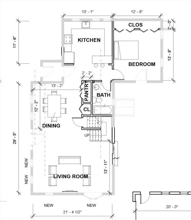
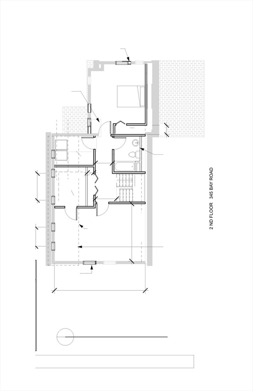
$2,372Ready Set Go! Attention Contractors!! Traditional Farmhouse Style Home is currently down to Studs & Ready to Finish into your Dream Home! Finished Plans Available. This Sweet <3 Property is currently planned to feature 1,910 SF including 3 generous bedrooms (1) bedroom on first floor and (2) bedrooms upstairs and will also have 2 full baths, Living, Dining & Kitchen w Slider to private back yard, Circular Driveway, some Mature Landscaping, 2-car garage, Backyard Barn (packed with potential!) and a New Septic System (2023). Located on Historical & Scenic Bay Road in North Easton this home sits on a fantastic large level corner lot abutting Welsch Woods Condo development, and is conveniently just minutes to Easton Five Corners, and only 3-4 miles radius between 24, 495 & 95. Purchase "As is" or with a Customized Builder Package (@ Additional Cost. Complete Home to Spec starts @ $829,900+)
| 20 hours ago | Listing updated with changes from the MLS® | |
| 24 hours ago | Price changed to $520,000 | |
| yesterday | Status changed to Active | |
| yesterday | Listing first seen on site |
The property listing data and information, or the Images, set forth herein were provided to MLS Property Information Network, Inc. from third party sources, including sellers, lessors, landlords, and public records, and were compiled by MLS Property Information Network, Inc. The property listing data and information, and the Images, are for the personal, non-commercial use of consumers having a good faith interest in purchasing, leasing or renting listed properties of the type displayed to them and may not be used for any purpose other than to identify prospective properties which such consumers may have a good faith interest in purchasing, leasing or renting. MLS Property Information Network, Inc. and its subscribers disclaim any and all representations and warranties as to the accuracy of the property listing data and information, or as to the accuracy of any of the Images, set forth herein.
Last checked 2026-03-07 04:18 AM UTC
Did you know? You can invite friends and family to your search. They can join your search, rate and discuss listings with you.